February 2026 Update
Throughout March and April, Siena and Executive Operations Committee will meet to discuss Project 2027. This process consists of reviewing the design work and costs for the women’s locker room and weight room remodel.
SAVE THE DATE! Our groundbreaking ceremony for Project 2026 will be held May 28, 2026 at 10:00 AM.
Please see “Archdiocese of Milwaukee, Archdiocesan Building Commission Proxies” for additional information.
Background
Launched in 2017, the Our Time Is Now capital campaign allowed for major renovations and upgrades at St. Catherine’s High School. The three distinct phases of fundraising supported major enhancements to the John F. McGuire Gym and John Foster Auditorium, the complete replacement of the roof and tuckpointing, the renovation of bathrooms on the first floor, and the completion of the third-floor STEM/science classrooms. This includes the SC Johnson STEM Lab, Perez Makerspace, a new physics classroom, and physical science classrooms.
Special thanks to the many donors, alumni, community members, and friends who made Our Time Is Now a success! This phase has concluded.
Chair
Patrick Diem ‘77
Honorary Co-Chairs
Mary (Katie) Dawson ‘60 and Edward DeMeulenaere
Daniel Horton ‘73 and Susan Horton
Steering Committee
Gloria Schumacher – Principal
John Busey II – Alumni Parent
Alyson Horton ‘01
Chris McAuliffe ‘65
Robert Miller ‘68
Brian Pleva ‘93
Linda Townsend Christ ‘69
Timothy Trecek ‘86
Dr. Sue Savaglio-Jarvis – President, Siena Catholic Schools of Racine
Archdiocese of Milwaukee, Archdiocesan Building Commission Proxies
The Archdiocese of Milwaukee Building Commission (AMBC) serves as an advisory body to the Archbishop of Milwaukee on parish, school, and institution construction and renovation projects (i.e., sanctuary projects, complex projects involving structural alterations to buildings, when permits are required or licensed professionals, etc.), affecting the church in southeastern Wisconsin. Any new construction and/or renovation project by an Archdiocesan parish, school, or institution must be submitted to the AMBC for review and be part of a strategic planning effort.
A four-step process, along with corresponding proxy requests, must be adhered to for these types of projects. The AMBC will review the required submitted information for each of the four steps in the proxy process, guide the parish, school, or institution through each step, and recommend action to the Archbishop. Approval of any proxy request is granted by the Archbishop in writing.
The four proxies required include:
- Proxy Request A: Request to hire an architect for rough drawings and for a financial and facilities feasibility study.
- Proxy Request B: Request to hire an architect for construction drawings
- Proxy Request C: Request for approval of preliminary plans – financial and construction
- Proxy Request D: Request for proxy to implement building or renovation project
Strategic Evolution
In Fall 2024, Siena Catholic Schools and St. Catherine’s partnered with the Steier Group, a nationally recognized Catholic development firm, to conduct a comprehensive planning study. The purpose of the study was to gauge community support and assess the financial capacity for several proposed capital projects. The final report was presented to the Board of Directors on November 7, 2024. The study revealed strong support among stakeholders for key priorities, most notably the creation of a safe and secure entrance and the renovation of the women’s locker room. While the community expressed enthusiasm for these projects, the findings also indicated that pursuing all of the proposed initiatives would exceed the current financial capacity of the St. Catherine’s community.
Grounded in this data and committed to responsible stewardship, the Board of Directors made the strategic decision to focus on the highest-priority improvements rather than launch a broader fundraising initiative aimed at new donors. This approach reflects a thoughtful response to the community’s values and a dedication to advancing the mission of St. Catherine’s with care and integrity.
- A one-page executive summary, including suggested next steps, is available for review here.
- A full executive report, redacting only names, can be reviewed here.
When Siena Catholic Schools was founded, a facilities study was conducted in October 2018 by Plunkett Raysich Architects, LLP, focusing on three school properties, including St. Catherine’s. The study identified both the needs now being addressed through the proposed project and the necessity for additional space.
A key finding was that the front entry at St. Catherine’s is not ADA-compliant and does not meet International Building Code (IBC) accessibility standards. The report states: “While not a direct educational space, the front administrative offices and entry are outdated and not organized for proper traffic or workflow. Direct access for visitors via a secure entry sequence is an absolute standard in school design and should be considered a top priority for student and staff security. Spaces for welcoming and meeting with families are also needed.”
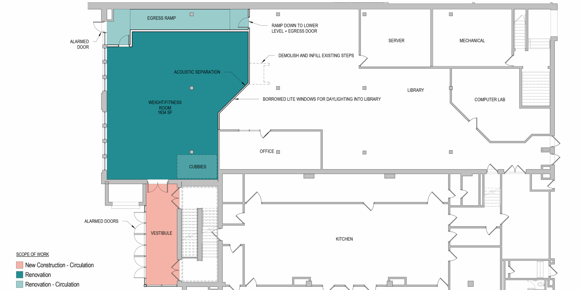
The study also highlighted a significant space disparity between the men’s and women’s locker rooms. The men’s locker room is 3,000 square feet with direct access to the main gym. In contrast, the women’s locker room is 46% smaller, with only 1,620 square feet.
The findings of the facilities study, the subsequent planning study, and specific designated gifts from donors all support prioritizing improvements to the entrance and locker room facilities.
Architecture Research and Partnership
The Board of Directors, led by Kurt Kayser, the Chief Operations Officer for Siena Catholic Schools researched, reviewed proposals, and interviewed the following architects during the previous capital campaign:
- Bray Architects
- CG Schmidt
- Eppstein Uhen Architects (EUA)
- Groth Design Group
- PRA Plunkett Raysich Architects
Bray Architects was selected and approved by the Archdiocese of Milwaukee to serve as the architectural partner for the Our Time is Now Campaign. Their prior work with St. Catherine’s has given them a deep understanding of the building’s unique needs, as well as a strong appreciation for its historic character and the sacred nature of our Catholic mission and therefore, the ARCH allowed Siena to continue working with Bray for our new projects.
On April 10, 2025, Siena Catholic Schools received formal approval from Archdiocesan Associate Superintendent Bruce Varick to move forward with Bray Architects as the lead firm for the proposed capital improvements. Supporting documentation for approval can be provided at the request of the building commission.
Siena Catholic Schools, through Chief of Operations Kurt Kayser, remains fully aligned with Catholic Mutual’s requirement that all contractual documents be reviewed prior to the start of any construction work. In accordance with guidance from Kevin Carnell, Claims and Risk Manager at Catholic Mutual, contracts for major renovation or remodeling projects are typically based on standard documents from the American Institute of Architects (AIA) or the Associated General Contractors of America (AGC), and must be carefully reviewed. These standard forms are often written in favor of the contractor from an insurance and indemnification standpoint. To ensure equitable terms that protect both the school and Archdiocese, these contracts can be amended as needed.
Consistent with past Siena Catholic Schools construction projects, all contractual documents will be submitted for review and approval once a contractor is selected, in full compliance with Catholic Mutual’s risk management protocols.
Proposed Conceptual Designs
The proposed conceptual designs were developed following a series of collaborative meetings between the project architect, Siena Catholic Schools, and the Executive Operations Committee, comprised of board members, key donors, senior-level administrators, and an Archdiocesan representative. These discussions focused on identifying facility needs, aligning priorities with the overall mission, supported by the results of our planning study conducted by the Steier Group, and ultimately ensuring alignment with our budget parameters. Based on these conversations and assessments, the following conceptual plans are being proposed for consideration.
Please click and drag horizontally on drawings to see current plans versus conceptual plans.
Secure Entry Renovation Plans
Women’s Locker Room Relocation Plans
Library / Weight Room Relocation Plans

Preliminary Budget Analysis
The preliminary architectural budget was developed by Bray Architects in collaboration with Siena Catholic Schools and the Executive Operations Committee. This budget reflects initial cost estimates based on the proposed conceptual designs and current market conditions. It assumes a design-bid-build construction delivery approach, with the bid date aligned to the project schedule. The estimate is based on two construction phases, each lasting approximately three to four months. Additionally, general conditions and certain soft costs have been prorated across the grouped projects to provide a comprehensive financial framework for planning and decision-making.
Financial Overview
Siena Catholic Schools recognizes that financial transparency for capital improvements is rooted in stewardship. Based on the findings and recommendations of the planning study, Siena Catholic Schools and St. Catherine’s have made the strategic decision not to move forward with a formal capital campaign at this time. Instead, Siena will utilize remaining funds from the previously approved Our Time is Now campaign, which received full endorsement from the Archdiocese of Milwaukee. While the original intent of the campaign was to fund multiple capital priorities, the planning study confirmed that additional resources would be required to fully execute all proposed projects. Given the financial limitations identified, not all campaign priorities can be pursued at once. All Our Time is Now donors, particularly our lead supporters, have been personally updated on the current direction and remain supportive of our vision and next steps.
Contact Us
For additional information on Our Time Is Now, Project 2026, Project 2027, or if you have questions regarding this process, please feel free to contact:
Kimberly Gardner
Chief Advancement Officer
Siena Catholic Schools of Racine
kgardner@sienacatholicschools.org
262-417-7623
Dr. Sue Savaglio-Jarvis
President
Siena Catholic Schools of Racine
ssavaglio@sienacatholicschools.org
262-800-1111
Kurt Kayser
Chief Operations Officer
Siena Catholic Schools of Racine
kkayser@sienacatholicschools.org
262-800-1111

